banksia net zero habitat

BANKSIA 02

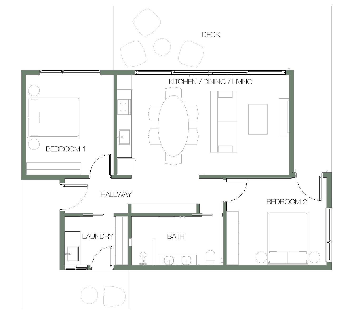
Size: 88 square metres

Rooms:
2 bedrooms
1 bathroom
living / kitchen / dining
laundry


starting from $160,000 excl. GST

INCLUSIONS:
triple glazed UPVc windows with AluClad
fully insulated external and internal wall panels
fully insulated roof panels
air-tigthness membrane
breathable weather barrier
healthy woodfibre insulation
optional: fully insulated floor panels
reaching 8 – 10 stars depending on orientation and climate

Thoughtfully designed for comfortable, sustainable living – meet the Habitat BANSIA 02

Looking for a beautiful, energy-efficient 2-bedroom home? The BANKSIA 02 is a compact, high-performing home designed to support modern living without compromise. Whether you’re building a primary residence, creating a holiday retreat, or investing in a long-term rental, this 2-bedroom, 1-bathroom home makes the most of every square metre.

Step inside to an open-plan kitchen, living and dining space that feels light-filled and inviting — designed for everyday ease and connection. Both bedrooms comfortably accommodate queen-sized beds, offering flexibility for families, couples, guests, or a work-from-home setup. A sleek bathroom, dedicated laundry space, and clever storage solutions round out the design, while the home’s airtight, well-insulated envelope keeps temperatures comfortable year-round.

Built using our prefabricated, panelised system, the Habitat 3-02 is delivered with airtightness layers, insulation and windows pre-installed — ensuring consistent, high-performance outcomes from the start. That means more predictability, less stress on site, and a home that’s ready to outperform.

Because small doesn’t mean settling. With BANKSIA 02, you get quality, comfort and sustainability – all wrapped into one intelligent design.

net zero habitat banksia floor plan

Curious about our other designs?

Click here to explore our other designs and features.

Want to find out more? Click the ‘LET’S TALK’ button to book a time to chat with one of our team.

We’d love to answer your questions and help you explore the best option for your needs! 

A NEW AREA OF HEALTHY AND SUSTAINABLE LIVING

A pre-designed, prefabricated home that sets a new standard for healthy and sustainable living.

✔ Truly a net zero home—designed for ultimate energy efficiency and comfort

✔ Achieving a 10-star energy rating in most locations across Australia, meaning virtually no energy consumption for heating and cooling.

✔ High-performance materials and construction for durability, comfort, and sustainability

Why Net Zero?

Year-Round Comfort

No more freezing winters or sweltering summers—just a naturally cosy home that stays the perfect temperature all year round.

Future-Proof Your Home

Built to exceed today’s energy standards, these all electric homes are ready for rising energy prices and a changing climate.

A Smarter Investment

A highly efficient, sustainable home isn’t just good for you—it’s good for resale value too. More comfort, more savings, and more demand in the future.

Smarter, Faster, and More Sustainable Construction

Our prefabricated, panellised homes are built with precision and efficiency, dramatically reducing construction time compared to traditional builds. With most of the work done off-site, we minimise labour costs, reduce on-site disruptions, and cut down on construction waste—making the process faster, cleaner, and more sustainable. Plus, the high level of quality control ensures your home is built to exceptional standards from the start.

net zero habitat design features

Net Zero Habitat Brochure

 

Want to learn more about our Net Zero Habitat homes?

 Pop in your details below and we’ll send you our beautifully curated PDF brochure straight to your inbox.

Pricing BANKSIA 02

We know pricing matters—and having at least a starting point helps.

Because every project is different (site conditions, builder costs and level of finish), it’s difficult to provide a fixed total build price. But we can offer clear pricing for our prefabricated package.

Prefabricated Package

(Up to Lock-Up)

Prices starting from $160,000 excl. GST.

This package includes our high-performance prefabricated system to bring your home to lock-up stage—ideal for owner-builders or those wanting flexibility in how their home is finished.

Inclusions
  • Prefabricated wall panels
  • Roof panels
  • Triple-glazed windows
  • External doors
  • Airtight, weather-resistant building envelope
  • Optional floor panels (or suitable for slab construction)

Once installed, the home is fully enclosed and ready for fit-out.

We can also assist with panel installation — please enquire for pricing.

Exclusions
  • Site works and site preparation
  • Foundations (slab or screw piles and insulation)
  • Internal finishes, fixtures and fittings
  • Appliances
  • External finishes and landscaping
  •  
Turnkey Net Zero Habitat Homes

Looking for a fully finished, move-in ready home?

Turnkey habitat pricing available on request

Final costs vary depending on location, builder and level of finish—but we’re happy to guide you through realistic budget ranges.

A simple, transparent starting point—so you can plan your project with confidence. 

bathroom

Dark & Bold

Adventurous (Dark Mode)

Light & Fresh

Neutral (Light & Airy)

Not ready to chat just yet but want to stay in the loop? Sign up here by clicking the ‘TELL ME MORE‘ button to learn more about our predesigned homes and be the first to know when new designs are released!