grevillea net zero habitat

PAPERBARK 02

Can be used as a secondary dwelling

Size: 60 square metres

Rooms
2 bedrooms
1 bathroom
kitchenette
living / dining
european laundry

starting from $115,000 excl. GST

INCLUSIONS:
triple glazed UPVc windows with AluClad
fully insulated external and internal wall panels
fully insulated roof panels
air-tigthness membrane
breathable weather barrier
healthy woodfibre insulation
optional: fully insulated floor panels
Reaching 8-10 stars, depending on orientation and climate


Choose between a clean-lined flat roof or a timeless gabled roof to match your taste and setting.

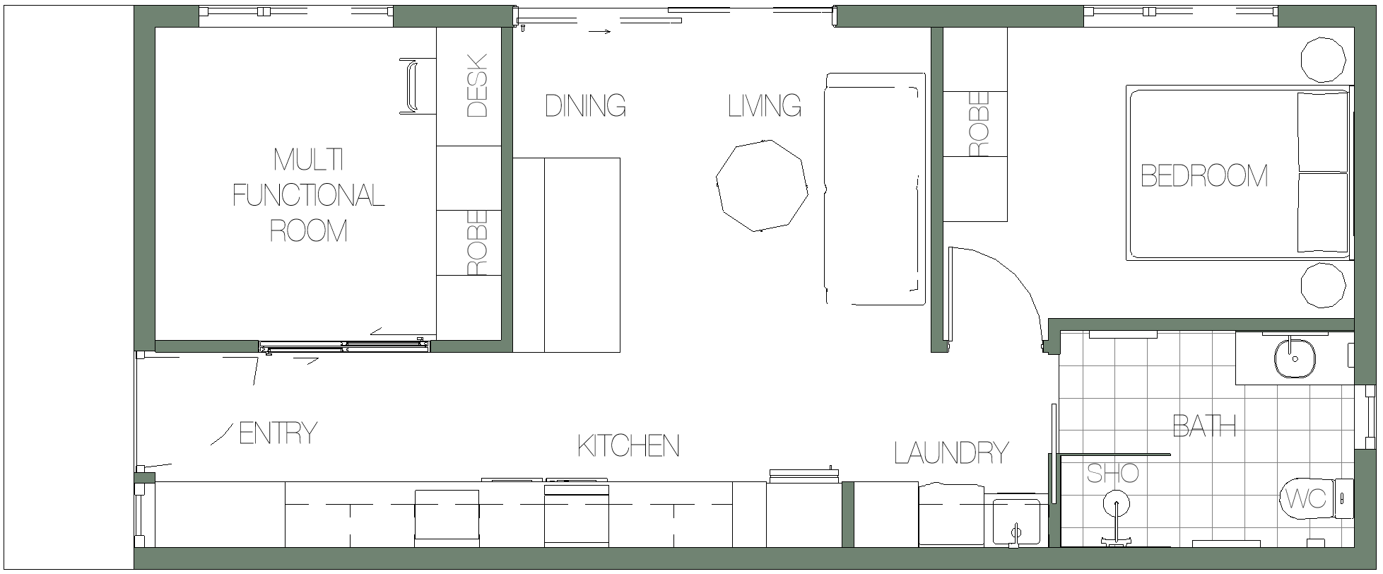
Need a compact, sustainable 2-bedroom layout ideal for a secondary dwelling? 𝗣𝗔𝗣𝗘𝗥𝗕𝗔𝗥𝗞 𝟬𝟮 includes everything you need in a smart design that works well in smaller spaces or backyard lots.

This well-planned home comes with two comfortable bedrooms, a streamlined bathroom, a functional kitchenette, and a cosy combined living and dining zone. A built-in European laundry and thoughtful use of space add to the practicality.

Whether it’s for extended family, guests, or a rental, 𝗣𝗔𝗣𝗘𝗥𝗕𝗔𝗥𝗞 𝟬𝟮 brings together simplicity, comfort, and efficiency in one compact home.

paperbark net zero habitat floor plan

Curious about our other designs?

Click here to explore our other designs and features.

A NEW AREA OF HEALTHY AND SUSTAINABLE LIVING

A pre-designed, prefabricated home that sets a new standard for healthy and sustainable living.

✔ Truly a net zero home—designed for ultimate energy efficiency and comfort

✔ Achieving a 10-star energy rating in most locations across Australia, meaning virtually no energy consumption for heating and cooling.

✔ High-performance materials and construction for durability, comfort, and sustainability

Why Net Zero?

Year-Round Comfort

No more freezing winters or sweltering summers—just a naturally cosy home that stays the perfect temperature all year round.

Future-Proof Your Home

Built to exceed today’s energy standards, these all electric homes are ready for rising energy prices and a changing climate.

A Smarter Investment

A highly efficient, sustainable home isn’t just good for you—it’s good for resale value too. More comfort, more savings, and more demand in the future.

Smarter, Faster, and More Sustainable Construction

Our prefabricated, panellised homes are built with precision and efficiency, dramatically reducing construction time compared to traditional builds. With most of the work done off-site, we minimise labour costs, reduce on-site disruptions, and cut down on construction waste—making the process faster, cleaner, and more sustainable. Plus, the high level of quality control ensures your home is built to exceptional standards from the start.

net zero habitat design features

Want to find out more? Click the ‘LET’S TALK’ button to book a time to chat with one of our team.

We’d love to answer your questions and help you explore the best option for your needs! 

wattle net zero habitat living / kitchen
Choose a Style That Feels Like Home

Our Net Zero Habitat homes not only perform exceptionally well—they look and feel beautiful too. That’s why we’ve created three carefully curated exterior and interior colour selections, so you can choose the style that suits you best.

Exterior Options

Dark & Bold – A striking dark grey cladding with complementary render sections for added texture and interest. Finished with a matching dark roof and window frames, plus warm timber reveals to soften the look and add character.

Light & Fresh – A timeless mix of light grey cladding and render, paired with a light-coloured roof and sleek black window frames. Clean, modern, and effortlessly elegant.

Warm & Natural – Similar to the Light version, but with beautiful real timber cladding and accents for a softer, nature-inspired aesthetic that brings warmth and richness to your home’s façade.

Interior Options

Adventurous (Dark Mood) – A rich, moody palette with warm grey walls, dark joinery and tiles, and a terrazzo-look floor. Designed to create a cosy, atmospheric feel with a touch of drama.

Neutral (Light & Airy) – A calming combination of warm whites and soft neutral tones, paired with a natural timber-look floor. Perfect for those who love a fresh, light-filled space.

Warm Timber (Natural Feel) – A variation of the Neutral option, enhanced with additional timber features throughout—bringing in more texture, warmth, and a subtle connection to nature.

Whichever combination you choose, your home will reflect sustainable design with timeless style. 

 

Net Zero Habitat Brochure

 

Want to learn more about our Net Zero Habitat homes?

 Pop in your details below and we’ll send you our beautifully curated PDF brochure straight to your inbox.

Pricing PAPERBARK 02

We know pricing matters—and having at least a starting point helps.

Because every project is different (site conditions, builder costs and level of finish), it’s difficult to provide a fixed total build price. But we can offer clear pricing for our prefabricated package.

Prefabricated Package

(Up to Lock-Up)

Prices starting from $115,000 excl. GST.

This package includes our high-performance prefabricated system to bring your home to lock-up stage—ideal for owner-builders or those wanting flexibility in how their home is finished.

Inclusions
  • Prefabricated wall panels
  • Roof panels
  • Triple-glazed windows
  • External doors
  • Airtight, weather-resistant building envelope
  • Optional floor panels (or suitable for slab construction)

Once installed, the home is fully enclosed and ready for fit-out.

We can also assist with panel installation — please enquire for pricing.

Exclusions
  • Site works and site preparation
  • Foundations (slab or screw piles and insulation)
  • Internal finishes, fixtures and fittings
  • Appliances
  • External finishes and landscaping
Turnkey Net Zero Habitat Homes

Looking for a fully finished, move-in ready home?

Turnkey habitat pricing available on request

Final costs vary depending on location, builder and level of finish—but we’re happy to guide you through realistic budget ranges.

A simple, transparent starting point—so you can plan your project with confidence. 

bathroom

Dark & Bold

Adventurous (Dark Mode)

Light & Fresh

Neutral (Light & Airy)

Not ready to chat just yet but want to stay in the loop? Sign up here by clicking the ‘TELL ME MORE‘ button to learn more about our predesigned homes and be the first to know when new designs are released!