correa net zero habitat

CORREA 01

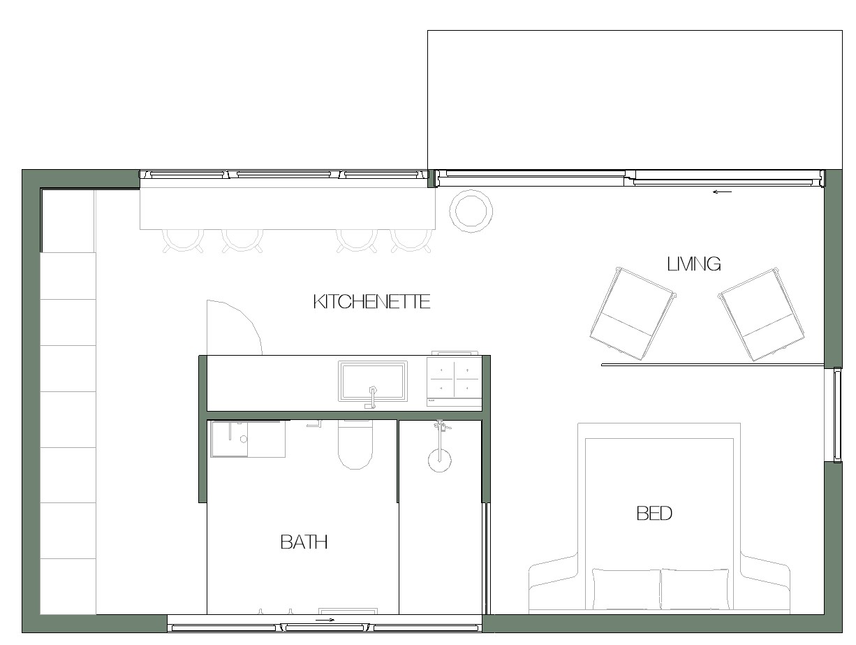
The CORREA 01 is a prefab studio home in Australia designed to deliver comfort, energy efficiency and healthy living in a compact, practical layout.

Size: 44 square metres

Rooms: 1 bedroom

1 bathroom
kitchenette
living / dining

With this design, you can choose between a sleek flat roof or a classic gabled roof—whichever suits your style and preference best.

Small footprint. Big on performance.

The CORREA 01 is our smallest and most efficient model — a beautifully compact 1-bedroom home that proves great things really do come in small packages. At just 44 square metres, it’s the perfect solution for a secondary dwelling, guest house, backyard studio, short-stay rental, or a stylish downsizer that doesn’t skimp on comfort or quality.

Step inside and you’ll find everything you need: a cosy bedroom, a well-appointed bathroom, and a clever kitchenette that flows into a compact living and dining area. It’s a smart, flexible layout designed for easy everyday living — and despite its size, it feels open, light and considered.

Like all our net zero habitat homes, the CORREA 01 is built using our prefabricated, panelised system. That means high performance from day one — with insulation, airtightness layers, and double-glazed windows pre-installed in a controlled factory environment. The result? A home that’s warm in winter, cool in summer, and truly efficient all year round.

With the CORREA 01 , you get the best of minimal living: streamlined design, low running costs, and big sustainability credentials — all in one small, smart package.

Net Zero Habitat Correa

Curious about our other designs?

Click here to explore our other designs and features.

A NEW AREA OF HEALTHY AND SUSTAINABLE LIVING

A pre-designed, prefabricated home that sets a new standard for healthy and sustainable living.

✔ Truly a net zero home—designed for ultimate energy efficiency and comfort

✔ Achieving a 10-star energy rating in most locations across Australia, meaning virtually no energy consumption for heating and cooling.

✔ High-performance materials and construction for durability, comfort, and sustainability

Why Net Zero?

Year-Round Comfort

No more freezing winters or sweltering summers—just a naturally cosy home that stays the perfect temperature all year round.

Future-Proof Your Home

Built to exceed today’s energy standards, these all electric homes are ready for rising energy prices and a changing climate.

A Smarter Investment

A highly efficient, sustainable home isn’t just good for you—it’s good for resale value too. More comfort, more savings, and more demand in the future.

Smarter, Faster, and More Sustainable Construction

Our prefabricated, panellised homes are built with precision and efficiency, dramatically reducing construction time compared to traditional builds. With most of the work done off-site, we minimise labour costs, reduce on-site disruptions, and cut down on construction waste—making the process faster, cleaner, and more sustainable. Plus, the high level of quality control ensures your home is built to exceptional standards from the start.

net zero habitat design features

Want to find out more? Click the ‘LET’S TALK’ button to book a time to chat with one of our team.

We’d love to answer your questions and help you explore the best option for your needs! 

wattle net zero habitat living / kitchen
Choose a Style That Feels Like Home

Our Net Zero Habitat homes not only perform exceptionally well—they look and feel beautiful too. That’s why we’ve created three carefully curated exterior and interior colour selections, so you can choose the style that suits you best.

Exterior Options

Dark & Bold – A striking dark grey cladding with complementary render sections for added texture and interest. Finished with a matching dark roof and window frames, plus warm timber reveals to soften the look and add character.

Light & Fresh – A timeless mix of light grey cladding and render, paired with a light-coloured roof and sleek black window frames. Clean, modern, and effortlessly elegant.

Warm & Natural – Similar to the Light version, but with beautiful real timber cladding and accents for a softer, nature-inspired aesthetic that brings warmth and richness to your home’s façade.

Interior Options

Adventurous (Dark Mood) – A rich, moody palette with warm grey walls, dark joinery and tiles, and a terrazzo-look floor. Designed to create a cosy, atmospheric feel with a touch of drama.

Neutral (Light & Airy) – A calming combination of warm whites and soft neutral tones, paired with a natural timber-look floor. Perfect for those who love a fresh, light-filled space.

Warm Timber (Natural Feel) – A variation of the Neutral option, enhanced with additional timber features throughout—bringing in more texture, warmth, and a subtle connection to nature.

Whichever combination you choose, your home will reflect sustainable design with timeless style. 

 

Net Zero Habitat Brochure

 

Want to learn more about our Net Zero Habitat homes?

 Pop in your details below and we’ll send you our beautifully curated PDF brochure straight to your inbox.

Pricing & Inclusions

Price on application

We’re currently putting the finishing touches on a full list of inclusions and specifications for each of our Net Zero Habitat designs—and we’ll be adding them to the website very soon.

In the meantime, if you’d like to learn more about any of our homes, or get a better idea of the costs involved, we’d love to hear from you. Whether you’re just starting to explore your options or you’re ready to dig into the details, our team is here to help.

Get in touch and we’ll guide you through everything you need to know.

pricing and inclusions

Dark & Bold

Adventurous (Dark Mode)

Light & Fresh

Neutral (Light & Airy)

Not ready to chat just yet but want to stay in the loop? Sign up here by clicking the ‘TELL ME MORE‘ button to learn more about our predesigned homes and be the first to know when new designs are released!